- 賃料
- 5.7万円
- マンション
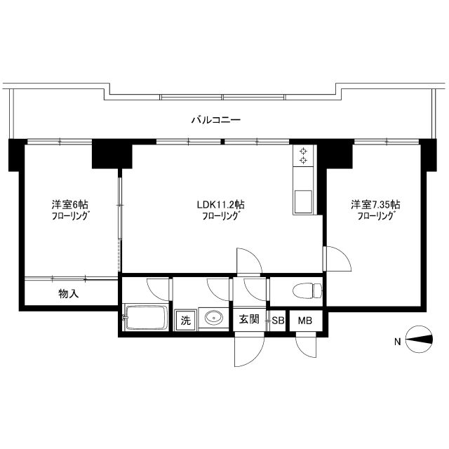
- 間取
- 1LDK
- 共益費・管理費
- 3000円
- 敷金
- 1ヶ月
- 礼金
- 1ヶ月
- 更新料
- 1ヶ月
|
|
|
|
- 所在地
- 神奈川県相模原市南区 御園1丁目 グリーンプラザ御園Ⅲ
- 交通
- 小田急小田原線 相模大野駅
バス(みゆき台団地 乗5分 停歩5分)
|
|
|
| 築年月 | 1987/06 | 構造 | PC |
| 階建 | 地上 3階 | 部屋階数 | 1階 |
| 面積 | 38.29m² | 駐車場 | 7,700円 空有 |
| 部屋番号 | 103 | 現況 | 居住中 |
| 物件番号 | 0148x103 | ||
| 設備・条件 | ペット対応 ガスコンロ 給湯 独立洗面台 シャワー トイレ専用 バス・トイレ別 エアコン 室内洗濯機置き場 インターネット有 都市ガス 公営水道 駐輪場 バイク置き場 ☆2口ガスコンロ設置可☆室内洗濯機置場☆バストイレ別☆独立洗面台☆ 保証会社加入必須 緊急サポート費:5,500円(税込※初回のみ) |
||
価格
面積
















