☆角部屋☆2面採光☆机付☆ ☆近隣に100円ショップやコンビニあり☆ ☆拝島駅より徒歩4分の駅近物件☆ ☆CATV(J:COM)☆敷地内ゴミ置場☆光ファイバー(NTT)☆屋根付駐輪場(月額無料)☆
昭島市松原町4丁目 【賃貸居住】マンション
- 賃料
- 4.6万円
- マンション
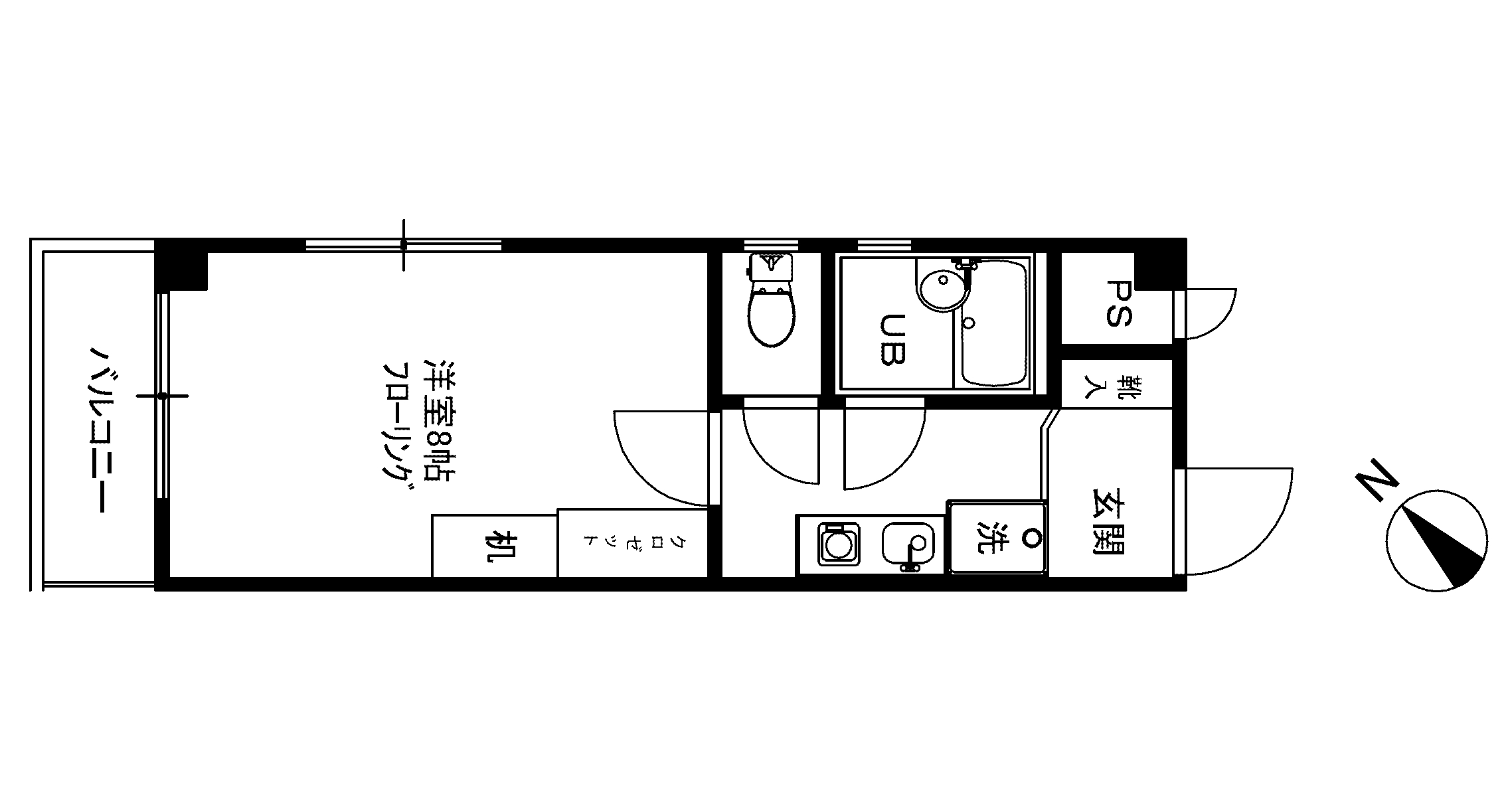
- 間取
- 1K
- 共益費・管理費
- 2000円
- 敷金
- 1ヶ月
- 礼金
- 1ヶ月
- 更新料
- 1ヶ月
|
|
所在地 | 東京都昭島市松原町4丁目 アドバンス拝島 |
---|---|
交通 | JR青梅線 拝島駅 徒歩4分 西武拝島線 拝島駅 徒歩4分 |
築年月 | 1992/01 | 新築/中古 | |
---|---|---|---|
面積 | 21.87m² | 計測方式 | |
バルコニー | 向き | 北西 | |
建物階数 | 地上3階 | 部屋階数 | 2階 |
部屋/区画番号 | 207 | 総戸/区画数 | 16 |
建物構造 | 鉄骨造 | ||
間取内容 |
洋室 8.0畳 |
||
住宅保険料 | 21,500円 2年 | ||
駐車場 | 無 | 取引態様 | 専任 |
引渡/入居時期 | 即時 | 現況 | 空家 |
周辺環境 | イトーヨーカドー500m コインランドリー650m スーパータイラヤ450m セブンイレブン600m ドラッグストア650m | ||
設備・条件 | IHコンロ 給湯 シャワー トイレ専用 バス・トイレ別 温水洗浄便座 エアコン 室内洗濯機置き場 インターネット有 都市ガス 公営水道 駐輪場 フローリング タイル貼り ☆キッチン(1口IHクッキングヒーター)☆エアコン(1基)☆温水洗浄便座☆室内洗濯機置場☆ 保証会社加入必須 |
||
物件番号 | 0635x207 |
Loading...





※物件掲載内容と現況に相違がある場合は現況を優先と致します。
店舗情報
須藤建設(株)
TEL:03-3444-0011
住所:東京都港区南麻布4-5-45
営業時間:AM9:30~PM6:30 / 定休日:無休(日曜祝日のご案内は不可)
免許番号:東京都知事(11)第41836号