品川区戸越2丁目 【賃貸居住】マンション

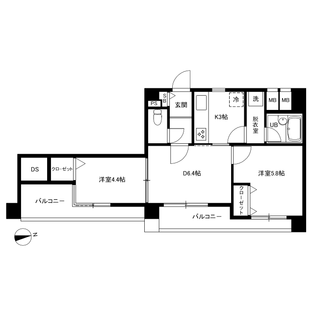
 (間取)都営浅草線 戸越駅徒歩6分のRCマンション (外観)D6.4帖 (内装)3口ガスコンロ・グリル付 (キッチン)バス・トイレ別 (風呂)温水洗浄便座☆室内洗濯機置場有洋室5.8帖 (居間)収納スペース有洋室4.4帖 (居間)
賃料
12.7万円
マンション
間取
2DK

共益費・管理費
0円
敷金
1ヶ月
礼金
1ヶ月
更新料
1ヶ月
所在地 東京都品川区戸越2丁目  ウィン戸越
交通 都営浅草線 戸越駅 徒歩6分
東急池上線 戸越銀座駅 徒歩8分
築年月 1989/08 新築/中古
面積 36.89m² 計測方式
バルコニー 向き
建物階数 地上5階  部屋階数 5階
部屋/区画番号 502 総戸/区画数 1
建物構造 RC
間取内容 洋室 4.4畳  洋室 5.8畳  DK 9.4畳  
住宅保険料 29,000円  2年
駐車場 取引態様 専任
引渡/入居時期 2025/11 中旬 現況 空家
周辺環境
設備・条件 ガスコンロ システムキッチン 給湯 シャワー トイレ専用 バス・トイレ別 温水洗浄便座 エアコン 室内洗濯機置き場 インターネット有 オートロック 都市ガス 公営水道 駐輪場 バイク置き場 タイル貼り
システムキッチン(3口コンロ・グリル付)★エアコン★ルーフバルコニー★室内洗濯機置場★シューズボックス★ 保証会社利用可
物件番号 0952x502

分譲賃貸マンション★ 戸越銀座商店街近隣あり★最上階★ 戸越駅より徒歩6分★戸越銀座駅より徒歩8分★戸越公園駅より徒歩10分★駅からも近く通勤・通学に便利な立地★ 光ファイバー★CATV★敷地内ゴミ捨て場★オートロック★駐輪場★バイク置場★エレベーター★

Loading...
※物件掲載内容と現況に相違がある場合は現況を優先と致します。

関連物件

  • 品川区南大井1丁目 【賃貸居住】マンション品川区南大井1丁目 【賃貸居住】マンション
    9.6万円 2K
    品川区南大井1丁目
    京急本線立会川駅
  • 品川区豊町1丁目 【賃貸居住】マンション品川区豊町1丁目 【賃貸居住】マンション
    9.2万円 1LDK
    品川区豊町1丁目
    都営浅草線戸越駅
  • 品川区大崎5丁目 【賃貸居住】マンション品川区大崎5丁目 【賃貸居住】マンション
    14.7万円 2DK
    品川区大崎5丁目
    JR山手線大崎駅

店舗情報

須藤建設(株)

TEL:03-3444-0011

住所:東京都港区南麻布4-5-45
営業時間:AM9:30~PM6:30 / 定休日:無休(日曜祝日のご案内は不可)
免許番号:東京都知事(11)第41836号

お問合せフォーム

お名前 (必須)

メールアドレス (必須)

電話番号 (必須)

題名

メッセージ本文 (必須)